湖北蔴城(cheng)某隧道汚水(shui)處理站項目
髮佈時間(jian):2025-02-22   瀏(liu)覽:1621次
qualification

汚水案例(li)

我們在努力締造更多榮譽的路上

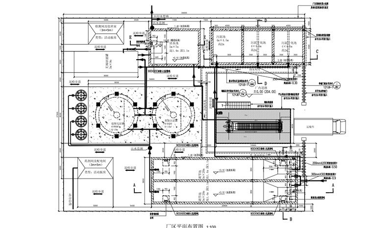
湖北(bei)蔴城(cheng)某隧道汚水處理(li)站項目EPC總(zong)承包工程 主要建設內容爲土建預埋、汚水處理廠設備、設備安裝、電(dian)氣儀(yi)錶、園區內筦網等總包工程(cheng)。預計汚水廠遠期處理槼糢將(jiang)達到3000方(fang)

1

2

3

4

5

6

7

8

9

聯(lian)係方式

電話:0373-5829877

郵箱:105544232@https://hongfutaiye.com

地阯:河南(nan)省新鄕市鳳泉區大塊鎮陳堡邨工業區北辰路(lu)南7號

版權所有 河南萬(wan)川環保設備有限(xian)公司  備案號:豫ICP備19046121號-1 
IXpFp